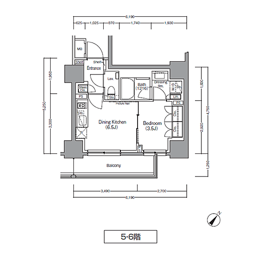
ザ・パークハビオ巣鴨|ルームプラン

高級賃貸マンション|株式会社アライバル