ザ・パークハビオSOHO南青山|間取り一覧(1R・1DK) | 港区南青山に誕生した高級賃貸マンション。

ザ・パークハビオSOHO南青山:間取り図   ザ・パークハビオSOHO南青山:室内写真

ザ・パークハビオSOHO南青山:ルームプラン

ザ・パークハビオSOHO南青山:ルームプラン:見出し

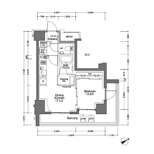
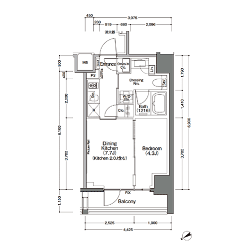
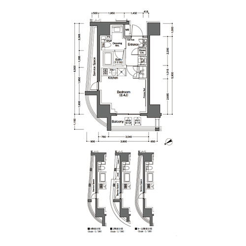
間取りは1R~2LDKのプランをご用意し、シングル層からファミリー層まで多様な生活スタイルに対応しました。
各タイプ共に各種設備や水まわり、収納もバランス良く備わっているため、暮らしやすい生活空間を実現しています。

また、9~12階の1LDK(Hタイプ)ではリビングダイニングキッチンに開放感のあるFIX窓を大胆に使用。
ワンランク上の暮らしをもたらす住空間を演出します。

ザ・パークハビオSOHO南青山:各フロア平面図
1F平面図
2F平面図
3~5F平面図
6~7F平面図
8F平面図
9~12F平面図
屋上
ページの先頭に戻る