ザ・パークハビオ新宿|1LDKタイプの間取り図|新宿区新宿6丁目。4駅13路線が利用可能な優れたポジションに誕生した高級賃貸マンション。

ザ・パークハビオ新宿:室内写真   ザ・パークハビオ新宿:間取り図

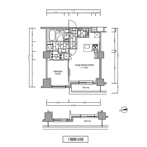
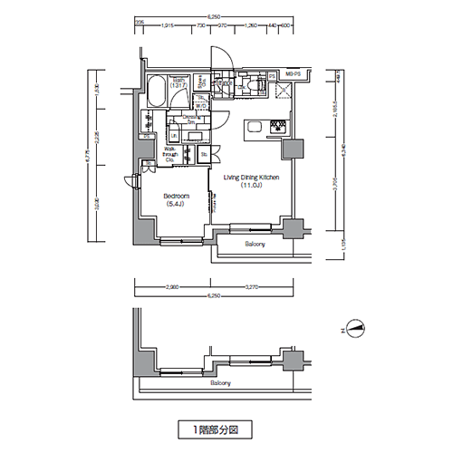
ザ・パークハビオ新宿:ルームプラン

ザ・パークハビオ新宿:ルームプラン:見出し

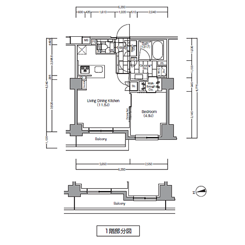
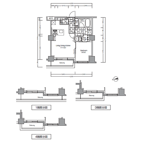
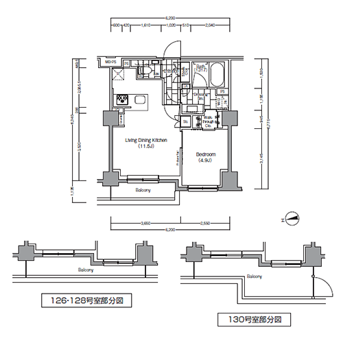
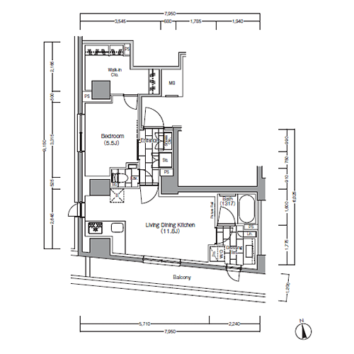
間取りは1Rから2LDKまでの全49タイプ。幅広いニーズにお応えする、多彩な住戸プランを実現しました。
室内は居室・収納・設備のバランスが上手くとれており、住み心地も良好です。

各設備に用いた素材や建具、フローリングにおいても、統一感のあるカラーによって上質感を演出しています。
高品質な生活空間もたらす優雅なひとときを、ごゆっくりとお過ごしください。

ザ・パークハビオ新宿:各フロア平面図
ページの先頭に戻る