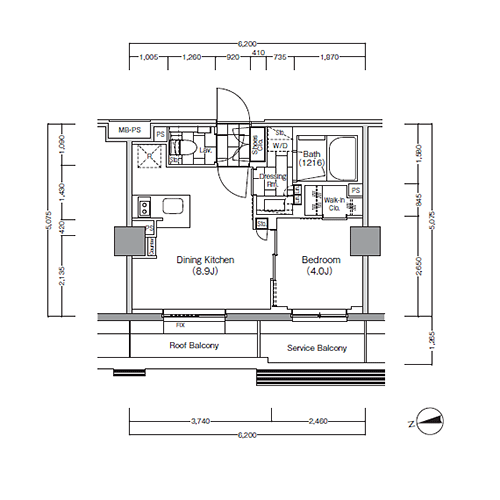
ザ・パークハビオ新宿|ルームプラン

高級賃貸マンション|株式会社アライバル