ザ・パークハビオ三軒茶屋|2LDKタイプの間取り一覧 | 世田谷区太子堂に誕生した高級賃貸マンション。

ザ・パークハビオ三軒茶屋:間取り図   ザ・パークハビオ三軒茶屋:室内写真

ザ・パークハビオ三軒茶屋:ルームプラン

ザ・パークハビオ三軒茶屋:ルームプラン:見出し

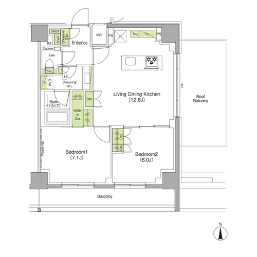
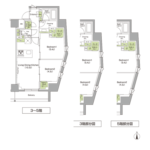
ザ・パークハビオ三軒茶屋の間取りは、1Rから2LDKまでの全20タイプ。多様なライフスタイルにお応えする、こだわりの住戸プランです。
1R・1Kタイプでは、ゆとりを感じる居室を採用。住戸によってはウォークインクローゼットも設置しています。

DINKS・ファミリー向けの1LDK・2LDKにおいては、人気のカウンター式システムキッチンをご用意しました。
質の高い住空間が暮らしにより深い安らぎをもたらします。

ザ・パークハビオ三軒茶屋:各フロア平面図
ザ・パークハビオ三軒茶屋:間取り図   ザ・パークハビオ三軒茶屋:室内写真
ページの先頭に戻る