ザ・パークハビオ中野富士見町ガーデン|間取り一覧 | 中野区弥生町に誕生した高級賃貸マンション。

ザ・パークハビオ中野富士見町ガーデン:間取り図   ザ・パークハビオ中野富士見町ガーデン:室内写真

ザ・パークハビオ中野富士見町ガーデン:ルームプラン

ザ・パークハビオ中野富士見町ガーデン:ルームプラン:見出し

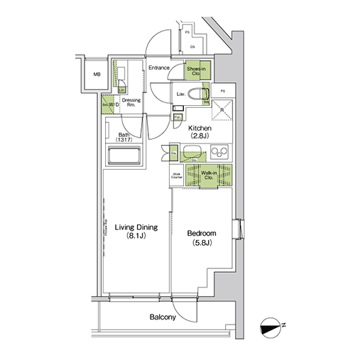
間取りは1Kから2LDKまでの全13種類。シングルからファミリーまでの幅広いニーズに対応した住戸プランです。
1Kタイプでは居室に7畳以上の広さを確保しており、ゆとりある空間を演出しました。

その他にも、収納力のあるウォークインクローゼットを擁した1LDK、人気のカウンターキッチンを備えた2LDKなど、
各間取りによってコンセプトを変えており、ライフスタイルに合わせてお選びいただけます。

ザ・パークハビオ中野富士見町ガーデン:各フロア平面図
敷地配置図・1階平面図
2階平面図
3~9階平面図
10~14階平面図
ページの先頭に戻る