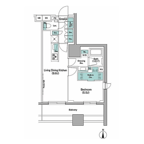
ザ・パークハビオ木場|ルームプラン

高級賃貸マンション|株式会社アライバル