ザ・パークハビオ市ヶ谷イースト|間取り一覧 | 新宿区市谷田町に誕生した高級賃貸マンション。

ザ・パークハビオ市ヶ谷イースト:ルームプラン

ザ・パークハビオ市ヶ谷イースト:ルームプラン:見出し

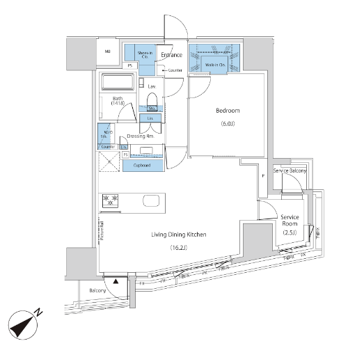
本物件の間取りは1DKから2LDKまで幅広くセレクト。2室を繋げて利用可能なシングル層に人気の1DKをはじめ、
ウォークスルークローゼット付きの1LDK、機能性の高い2LDKなど、多彩な生活スタイルに対応するプランをご用意しました。
質の高いプライベート空間が日々の安らぎをより深めると共に、豊かな都心生活を育みます。

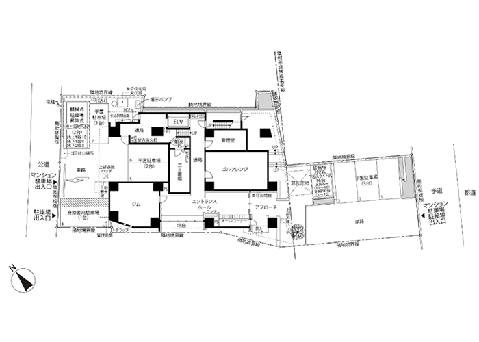
ザ・パークハビオ市ヶ谷イースト:各フロア平面図
ページの先頭に戻る