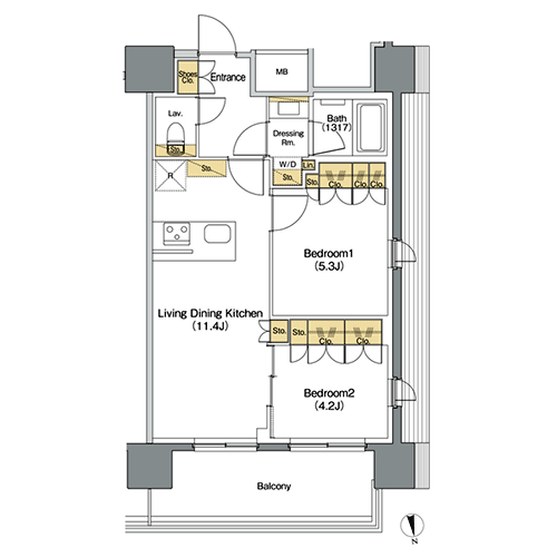
ザ・パークハビオ本郷菊坂|ルームプラン

高級賃貸マンション|株式会社アライバル