
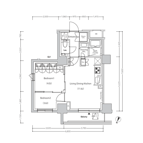
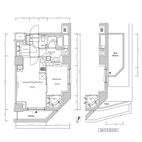
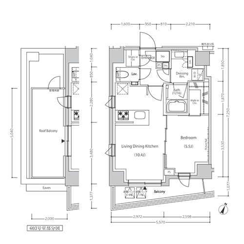
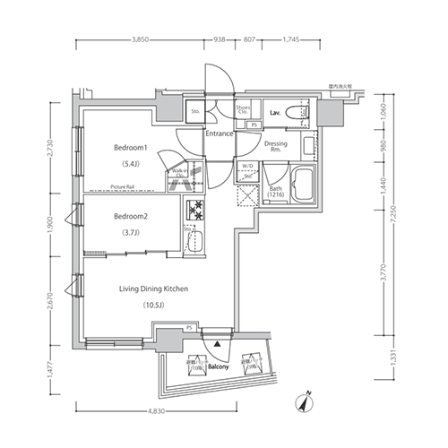
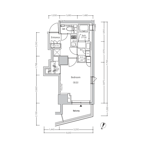
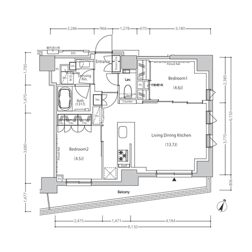
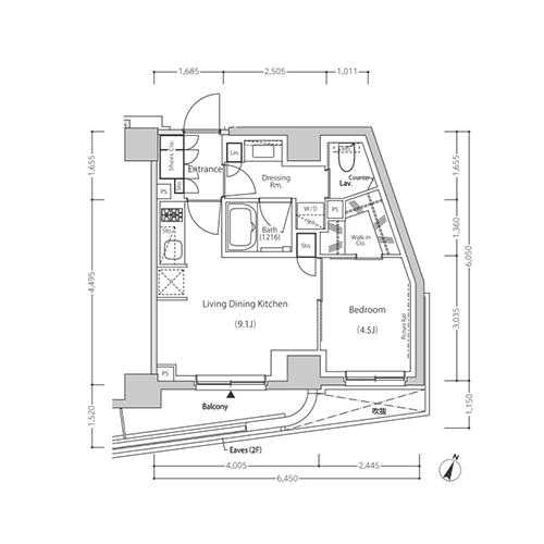
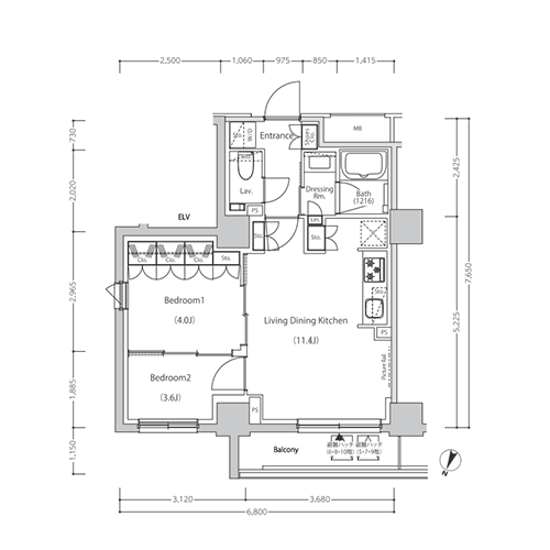
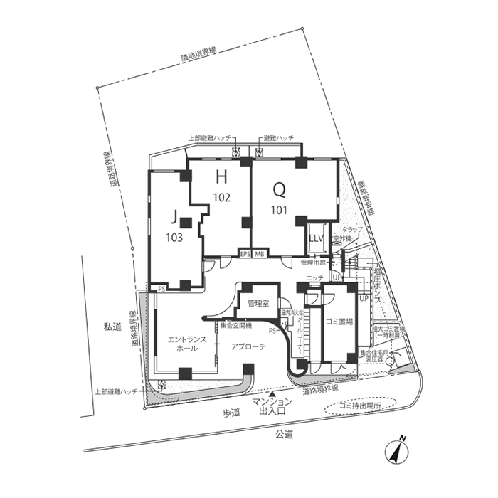
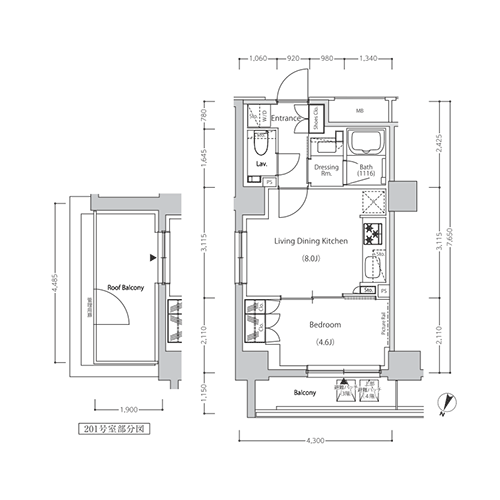
本物件の間取りは、1R(約25㎡)から2LDK(約52㎡)までの全19種類。
一人暮らしの方はもちろん、DINKSやファミリー世帯といった様々なライフスタイルに対応する住戸プランを実現しています。
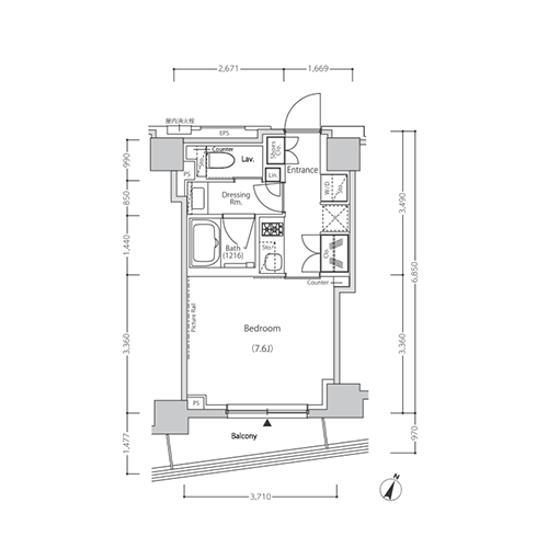
1K・1Rでは、ベッドルームに約7~8畳の専有面積を確保しており、ゆとりある生活空間を実現しました。
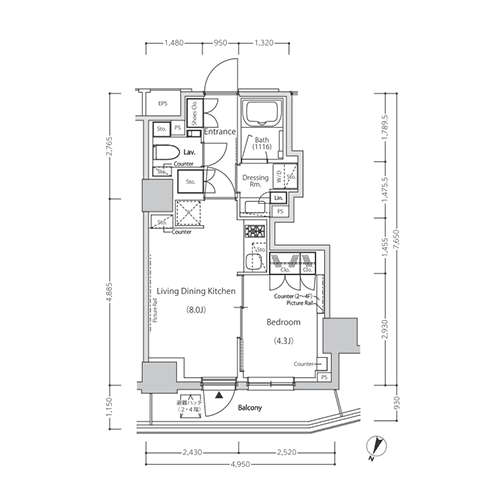
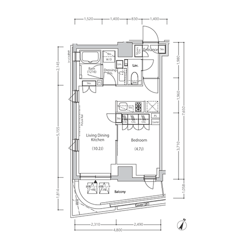
1LDK・2LDKでは、バランスの取れた水回りと収納を特徴とし、多くの住戸でリビングとベッドルームの2室を繋げて利用することも可能です。
配慮と工夫が行き届いた高品質のプライベート空間が、都心生活に安らぎのひとときをもたらすことでしょう。