高級賃貸マンション「ザ・パークハビオSOHO市谷左内町」の賃貸募集を開始しました。
5月末日までのご成約に限り、仲介手数料無料にてご案内致しております。

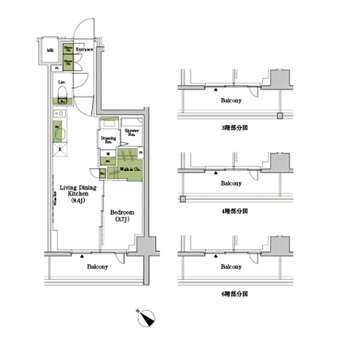
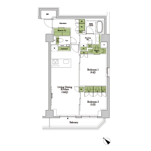
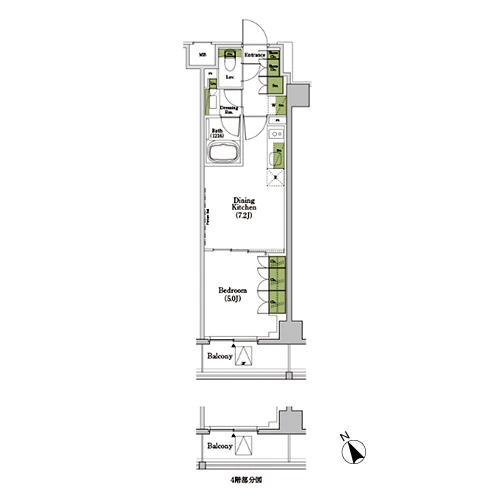
各部屋の枠内をクリックすると間取り図が表示されます。
最終更新日:2026年5月15日
お問合せは下記のフリーコールからどうぞ
上記の番号をタップしてお電話ください。
[電話受付時間] 10:00~19:00
※繋がりにくい場合は、
03-5343-6030へお電話ください。

メールのお問合せは24時間365日受付しています。


ザ・パークハビオSOHO四谷左内町では、各住戸ひとつひとつに丁寧なしつらえを施し、快適な住空間を創り上げています。
間取りは1Kから2LDKまで幅広くご用意し、SOHO利用にも適したルームプランを多数取り揃えました。
各住戸ともに水回りがバランス良く配置されており、生活動線がスムーズ。
さらに、プライバシーにも配慮した設計で来客時でも安心です。
都心での暮らしにゆとりを感じられる居住空間で、豊かなライフスタイルを演出できることでしょう。


本物件から最寄り駅までは徒歩3分。駅からも近く、4路線を利用することができる大変便利な立地です。
新宿、池袋、有楽町など、都内各地にもスムーズに繋がる優れたアクセス環境が整っています。
徒歩圏にはスーパーや薬局など様々な商業施設も多数揃っているため、日常のお買い物に困ることはありません。
楽しみに満ちた住環境と優れた交通利便性によって、暮らしはさらに彩られることでしょう。
市ヶ谷記念館
神楽坂通り商店街
マルエツ市ヶ谷見附店
肉のハナマサ市ヶ谷店
中央大学市ヶ谷キャンス
江戸城外堀跡
※掲載の周辺環境は変更になる場合があり、将来にわたり保証されるものではありません。



本物件では多彩な用途でご利用いただける「スタイルラウンジ」をご用意しました。
こちらでは、無料のWi-Fiや個室ブース、会議室も備わっており、オフィスとしての機能性の高い空間を実現。
また、屋上に設置された「スカイテラス」はダイナミックな都心の風景が眼下に広がり、気分転換にも最適です。


本物件では住まいの維持管理のしやすさに配慮し、魅力的な設備・仕様を多数ご用意しました。
スイッチひとつでお湯はり・追焚・保温ができる追焚機能付きのバスルームや、
洗面用具などを機能的に収納できるスペースを設けた独立洗面台など、水回りの機能も充実しています。
また、鍵を取り出さずに解錠できるラクセスキーやホテルライクな内廊下など、
ワンランク上の視点で考えた暮らしやすさへの配慮が、心豊かに過ごせる空間づくりを可能にしています。
※設備一覧画像はイメージとなっており、実際の仕様とは異なります。
