パークハビオ渋谷|ルームプラン



タイプ

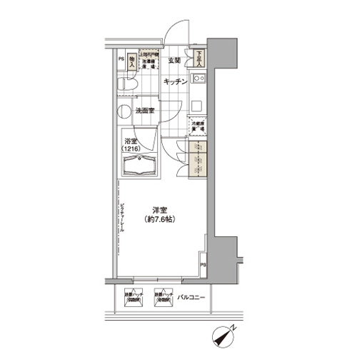
間取図



高級賃貸マンション|株式会社アライバル