高級賃貸マンション「ザ・パークハビオ日本橋茅場町」の賃貸募集を開始しました。
2026年3月末日までのご成約に限り、仲介手数料無料・礼金0ヶ月にてご案内致しております。

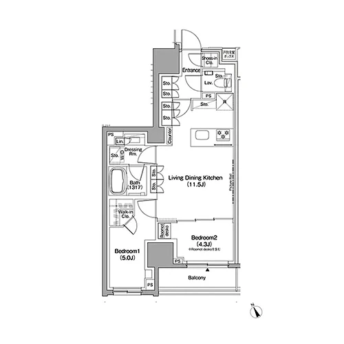
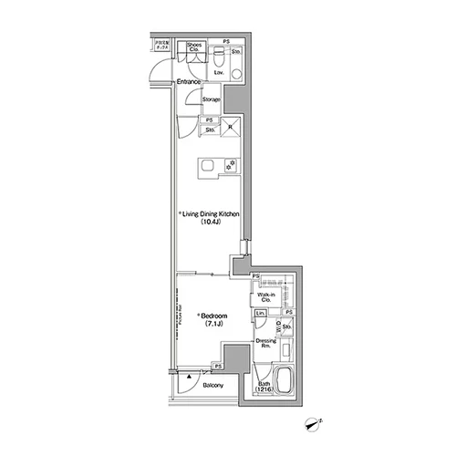
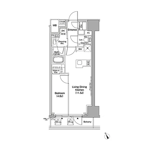
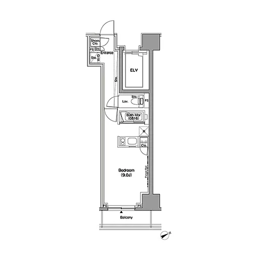
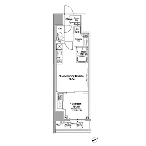
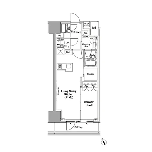
各部屋の枠内をクリックすると間取り図が表示されます。
※賃料の背景色が の住戸は、フリーレント1ヶ月となります。
最終更新日:2026年1月16日
お問合せは下記のフリーコールからどうぞ
上記の番号をタップしてお電話ください。
[電話受付時間] 10:00~19:00
※繋がりにくい場合は、
03-5343-6030へお電話ください。

メールのお問合せは24時間365日受付しています。


忙しい都心居住者にとって、住まいはかけがえのない場所です。
ザ・パークハビオ日本橋茅場町では、入居者がより素敵で心地よいと感じる高品質な住戸プランをセレクト。
間取りは1R(約28㎡)から2LDK(約51㎡)をご用意し、シングルからファミリー層までの幅広いニーズにお応えします。
さらに、タイプによってはキッチン・洗面台を一体化した「Roomot MIXINK」をはじめ、バスタブと洗い場を兼用した「Roomot BathMor」、
ワークスペース・収納を自分好みにカスタマイズできる「Roomot desko」も採用し、多様な生活スタイルにも対応しました。
クオリティを追求した優れた住空間と共に、豊かな都心生活をお過ごしください。


ザ・パークハビオ日本橋茅場町から最寄りの「茅場町駅」までは徒歩3分。
複数の路線を利用することができ、都内各地にもスムーズにつながるため交通アクセスも良好です。
また、生活圏内には「日本橋高島屋」や「コレド日本橋」といった人気の大型商業施設が多数点在。
ショッピングやグルメ、レジャーなど、都心ならではの華やかな暮らしを存分に楽しむことができるでしょう。
日本橋高島屋
コレド日本橋
日本橋三井ホール
日本橋三越
日本橋麒麟像
中央区新川公園
※掲載の周辺環境は変更になる場合があり、将来にわたり保証されるものではありません。



ザ・パークハビオ日本橋茅場町の設備・仕様は、毎日使うものだからこそ高品質な機能を取り入れ、使いやすさにこだわりました。
静音シンクを取り入れた使いやすいシステムキッチン、三面鏡裏収納を採用した独立洗面台など、水まわりの機能も充実。
さらに、本物件ではエントランスに顔認証で解錠できるシステムを導入。
荷物で両手が塞がっている状態でもスムーズに解錠することができ、セキュリティの強化にもつながります。
※設備一覧画像はイメージとなっており、実際の仕様とは異なります。
