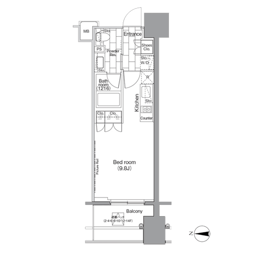
パークハビオ平河町|ルームプラン

タイプ

高級賃貸マンション|株式会社アライバル